Description
Crafted from high-quality steel, the 1 Step Steel Stringer Stair Riser is built to withstand the test of time and heavy foot traffic. Its robust construction ensures stability and safety, providing a reliable foundation for your staircase. The sleek and modern design seamlessly integrates with various architectural styles, making it a versatile choice for both residential and commercial applications.
One of the standout features of the 1 Step Steel Stringer Stair Riser is its innovative single-step installation process. Unlike traditional stair risers that require multiple steps and extensive labor, this product streamlines the installation, saving you valuable time and effort. The pre-engineered design allows for quick and precise placement, ensuring a perfect fit every time.
The 1 Step Steel Stringer Stair Riser is available in a range of sizes to accommodate different staircase configurations. Whether you’re working on a compact residential staircase or a grand commercial one, TENGYU has you covered. The product’s versatility extends to its compatibility with various tread materials, including wood, concrete, and tile, giving you the flexibility to create the perfect look for your project.
STAIR RISER – INSTRUCTIONS
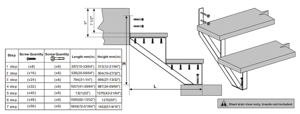
- Bolt stringers to deck (for concrete base) with provided Hex Sleeve Anchor Bolts, not more than 3′ apart (treads may extend over side of each riser by 6″). First tread should be 9″ down from deck surface (7-1/2″ once treads are installed).
- Bolt bottom of stringers to landing or concrete pad with provided Hex Sleeve Anchor Bolts – ensure stringers are parallel.
- Starting half way up, install treads using provided Self-Tapping Screws (ST6.3).
- Please remember not to over-tighten.
By Wendy Zhou










